切换到宽版
  • 20阅读
  • 2回复

[奇观]重庆麓悦江城咖啡厅 / 直现建筑//北京湾里·王府井WelITown及湾里·诺岚酒店 / Aedas[50P] [复制链接]

上一主题 下一主题
在线jjybzxw

UID: 551814

 

发帖
224119
金币
711918
道行
2006
原创
2450
奖券
3340
斑龄
42
道券
1233
获奖
0
座驾
设备
摄影级
在线时间: 48343(小时)
注册时间: 2008-10-01
最后登录: 2026-02-04
只看楼主 倒序阅读 使用道具 楼主  发表于: 昨天 09:49
— 本帖被 xgch 执行加亮操作(2026-02-03) —
重庆麓悦江城咖啡厅 / 直现建筑[36P]




项目视频
设计简介
重庆是一座由山与水共同塑造的城市。复杂的地形条件与密集的城市基础设施在此叠合,高架道路、山体与水岸共同构成了一种高度张力化的城市景观。项目位于麓悦江城这一山水交汇的场所之中,以一座小型咖啡厅的形式嵌入环境,尝试通过一种轻盈而克制的建筑介入,回应城市基础设施、自然地形与日常公共生活之间的关系。




建筑整体由两片折叠的三角形屋顶构成。屋顶以约三十度的夹角展开,彼此呼应又保持相对独立,形成清晰而简洁的建筑轮廓。临公园一侧的屋顶贴近地面展开,姿态低矮而内敛,在尺度与方向上与周边水杉林形成对照;临湖一侧的屋顶则向外舒展,指向观鸟塔与远处江面,回应更为开阔的景观视野。两片屋顶之间形成一处半室外的灰空间,既作为室内外的过渡,也为停留、就坐与观景提供了多种可能。建筑通过最基本的几何构成,生成了富有层次的空间关系。



室内空间延续了建筑整体的轻盈逻辑。通过围护墙体的组织方式,弱化了室内柱网对空间的干扰,使内部空间保持连续而纯净的状态。玻璃与实体墙体的组合在提供必要围合的同时,模糊了室内外的边界,周围的自然景观得以渗透其中,光线与视线在空间中自由流动,使日常的停留行为与自然环境建立直接联系。








室内主要由两个功能空间构成。沿道路一侧布置接待与操作台,与道路方向平行;沿河一侧为座椅区,同样与水岸平行,设置了多种不同组合方式的座位形式。两个空间通过中部的一条玻璃廊道连接,在保持联系的同时形成适度的空间分离。玻璃廊道两侧可通向由两处体量围合形成的室外空间,使室内外空间得以延续与渗透。通过体量与环境之间的相互回应,建筑自然生成了丰富而连续的空间体验。




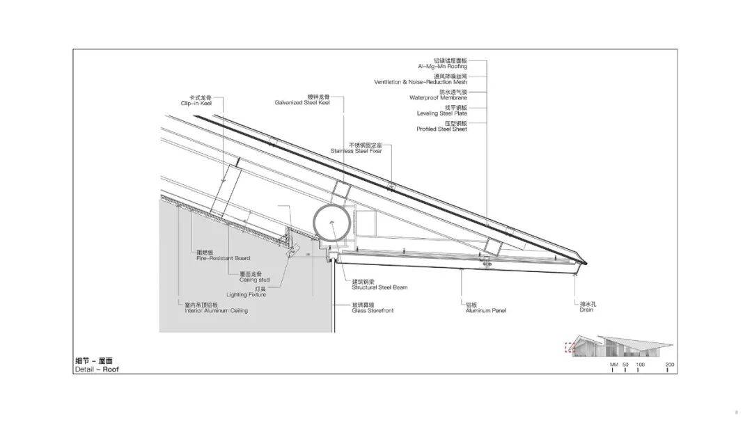
在材料选择上,项目进一步强化了轻盈而克制的建筑表达。整体采用钢结构体系,屋面为直立锁边铝镁锰板系统,围护系统为超白玻璃幕墙。室内地面采用白色水磨石,墙面为白色竖向长城板,天花则以银色铝板处理,以呼应折叠屋顶的几何形态,并在室内空间中延续结构的张力。南侧立面设置的水幕在开启时可对室内起到降温作用,同时在玻璃表面形成一层动态界面,使空间在通透与朦胧之间切换。



尽管体量有限,这座咖啡厅试图以小见大。它既是麓悦江城公共生活体系中的一个补充节点,也是一处对重庆山水城市语境的轻声回应。通过轻盈而清晰的构筑语言,建筑与周边粗犷的地形与交通结构形成对比与共鸣,为日常生活提供了一处可停留、可感知城市与自然关系的公共空间。

项目图纸

屋顶细部




立面图

首层平面

屋顶平面

场地平面

手工模型1-直现建筑

手工模型2-直现建筑
项目名称: 重庆麓悦江城咖啡厅
项目地址: 重庆麓悦江城麓溪湖畔
项目类型: 公共建筑-咖啡厅
完成年份: 2025.11
建筑面积: 200 平米
业主: 重庆万悦置业有限公司
建筑及室内设计: 万华研发 + 直现建筑
主创建筑师:梁蕊、王宝岳、方卓欣
设计团队:徐倩倩、吴布唯、尹秀璟、张羽轩
建筑施工图设计: UDG联创设计
景观设计: WTD纬图设计
摄影师: 存在建筑、三棱镜
视频:A8设计中心
========================================================================================================================================

北京湾里·王府井WelITown及湾里·诺岚酒店 / Aedas[14P]


毗邻北京环球度假区的崭新休闲目的地——“湾里”,它由传统车辆段蜕变成为了现代城市新地标,在为北京注入新活力的同时,亦与酒店及文化中心共同构建出独具特色的多元业态目的地。
整体规划从巴比伦空中花园中汲取灵感,突破传统布局形式,将商业与地铁联动,实现建筑与城市紧密的动态相连。占地167,000平方米的购物中心与35,000平方米的五星级酒店,以建筑体量围合现存的车辆段,层层递进的绿色退台,以自然的曲线柔化建筑轮廓,模糊室内外界限。多层次户外活动空间、阶梯式露台及屋顶花园,将整个开发地块无缝连接。
01.
湾里:北京活力新地标,购物休闲之选

为构建连续开放的公共空间体系,湾里以独特锚点构建沉浸式购物中心,衔接城市界面。层层退台将外部区域与商业裙楼相连,使建筑与周围的自然景观完美融合,彰显人与自然的和谐共生。流线型立面柔化了建筑轮廓,而屋顶悬挑的环形碟状结构恰如悬浮的飞碟,结合主入口处嵌入的数字屏幕,一同营造出层次丰富的抵达体验。

流线柔和的“飞碟”造型立面
Aedas全球设计董事林静衡表示:“我们将‘自然与未来’的主题延伸至室内,每个中庭都以独特形态构筑出令人兴奋的个性化商业空间。”中庭之一以马蹄莲为灵感,玻璃幕墙和LED屏幕从屋顶倾泻而下,化身照明穹顶。白天充足的阳光洒入室内,而当夜幕降临,LED屏幕将在夜空背景下上演如同极光般绚丽的视觉效果。


以马蹄莲和极光为灵感的中庭穹顶(与JATO合作设计)


以瀑布为灵感的中庭(与JATO合作设计)
屋顶中庭融合数字水景与瀑布元素,创造出自然生动、多元互动的空间。瀑布自顶端垂直倾泻而下,凸显出中心中庭的位置与规模。户外中庭模糊了内外空间的界限,在商业裙楼的上方形成了一个犹如剧院般的屋顶花园,其下层叠错落的零售空间强化了流动感,为整个开发项目注入活力。

多层屋顶中庭
02.
新生代酒店:现代奢华与设计的迭代定义

酒店位于车辆段西侧,可俯瞰整个环球影城。设计团队注重抵达体验的营造——将入住服务设于顶层,确保所有访客可在此尽享壮阔景色。
酒店由三重体量叠加构成:底层为展览空间与咖啡厅,中部为客房区,顶层采用悬挑玻璃幕墙体块打造出一座水晶玻璃体,其内部设有空中大堂、泳池、F&B和健身房等系列娱乐设施,将都市美景与落日余晖尽收眼底。

三层户外平台与阶梯式屋顶花园
酒店采用阶梯式几何造型,构筑出拥有室外露台的独特客房单元,可俯瞰村落车辆段。位于三楼的户外花园平台与屋顶花园,为公众提供了开放的休闲空间。花园平台上流线型的天窗,将自然光线引入下方的咖啡厅与展览空间。户外平台与车辆段上方相邻的村落无缝衔接,而呼应酒店立面元素的拱形玻璃连桥则将酒店与商场相连,形成了串联酒店、湾里以及车辆段的环形衔接。


科技与自然交融的都市绿洲
祈礼庭(David Clayton)说道:“湾里·王府井WellTown及湾里·诺岚酒店将依托便捷的地铁网络,凭借充满活力的零售街区及TOD配套设施,在车辆段之上构筑出联动社区与游客的活力综合枢纽。”


湾里·王府井WellTown及湾里·诺岚酒店夜景
湾里·王府井WelITown及湾里·诺岚酒店
位置:中国北京
业主:北京环汇置业有限公司
设计及项目建筑师:Aedas
建筑面积:302,000平方米
竣工年份:2025
主要设计人:林静衡,全球设计董事;祈礼庭(David Clayton),全球设计董事
1条评分金币+35
xgch 金币 +35 辛苦了,感谢您无私奉献的精神! 昨天 21:55
山庄提示: 道行不够,道券不够?---☆点此充值☆
 
在线jjybzxw

UID: 551814


发帖
224119
金币
711918
道行
2006
原创
2450
奖券
3340
斑龄
42
道券
1233
获奖
0
座驾
设备
摄影级
在线时间: 48343(小时)
注册时间: 2008-10-01
最后登录: 2026-02-04
只看该作者 沙发  发表于: 昨天 09:51
重庆麓悦江城咖啡厅 / 直现建筑
优点
1. 设计理念巧妙
充分考量重庆独特的地形与城市景观特征,以小型咖啡厅嵌入山水交汇之地,通过轻盈克制的建筑介入方式,巧妙回应城市基础设施、自然地形与日常公共生活的关系,使建筑与周边环境形成有机融合,展现出对场地特质的深度理解和尊重。
以小见大,虽体量有限,但作为麓悦江城公共生活体系的补充节点,同时对重庆山水城市语境做出回应,为日常生活提供可感知城市与自然关系的公共空间,赋予建筑更深层次的意义。
2. 空间设计丰富
建筑整体由两片折叠三角形屋顶构成,形成清晰简洁轮廓的同时,通过不同姿态的屋顶(临公园一侧低矮内敛,临湖一侧向外舒展)以及两片屋顶间形成的半室外灰空间,生成富有层次的空间关系,满足多种功能需求。
室内空间延续轻盈逻辑,通过围护墙体组织弱化室内柱网干扰,保持空间连续纯净;玻璃与实体墙体组合模糊室内外边界,使自然景观渗透,光线与视线自由流动,增强人与自然的互动体验。
室内功能分区明确且合理,接待与操作台、座椅区通过玻璃廊道连接,既保持联系又适度分离,同时通过通向室外空间的设置,延续与渗透室内外空间,形成丰富连续的空间体验。
3. 材料选择得当
整体采用钢结构体系,屋面为直立锁边铝镁锰板系统,围护系统为超白玻璃幕墙,室内地面、墙面、天花材料选择与折叠屋顶几何形态相呼应,强化轻盈克制的建筑表达,延续结构张力,且各材料之间搭配协调,营造出统一和谐的建筑氛围。
南侧立面设置水幕,不仅具有实用降温功能,还能在开启时形成动态界面,使空间在通透与朦胧间切换,增添了空间的趣味性与变化性。
不足
1. 由于体量较小,功能相对单一:作为咖啡厅,主要满足基本的接待、就座和观景功能,在功能多样性上可能存在一定局限,难以承载更复杂的公共活动或提供更多元的服务体验。
2. 对特殊天气适应性描述不足:虽然提到水幕的降温作用,但对于建筑在极端天气(如暴雨、大风等)条件下的应对措施和空间适应性方面缺乏详细说明,可能影响建筑在不同环境下的使用舒适度和安全性。
北京湾里·王府井WelITown及湾里·诺岚酒店 / Aedas
优点
1. 整体规划创新
从巴比伦空中花园汲取灵感,突破传统布局,将商业与地铁联动,实现建筑与城市紧密动态相连,构建出独具特色的多元业态目的地,为北京注入新活力,这种创新规划理念具有前瞻性和示范性。
以建筑体量围合现存车辆段,通过层层递进的绿色退台、多层次户外活动空间、阶梯式露台及屋顶花园等设计,将整个开发地块无缝连接,模糊室内外界限,彰显人与自然和谐共生理念,营造出丰富多样的空间体验。
2. 商业空间设计独特
湾里购物中心以独特锚点构建沉浸式体验,通过层层退台连接外部区域与商业裙楼,使建筑与自然景观融合。流线型立面和屋顶悬挑的环形碟状结构结合数字屏幕,营造出层次丰富的抵达体验,吸引消费者。
室内中庭设计独具匠心,以马蹄莲、瀑布等为灵感,结合玻璃幕墙、LED屏幕和数字水景等元素,打造出个性化商业空间,白天阳光充足,夜晚呈现绚丽视觉效果,增强商业空间的吸引力和趣味性。
3. 酒店设计注重体验
酒店位置优越,可俯瞰环球影城。设计注重抵达体验,将入住服务设于顶层,让访客尽享壮阔景色。
酒店由三重体量叠加构成,功能分区明确,底层展览空间与咖啡厅、中部客房区、顶层空中大堂及娱乐设施,满足不同需求。阶梯式几何造型客房单元配备室外露台,三层户外平台与阶梯式屋顶花园为公众提供开放休闲空间,同时通过天窗、连桥等设计实现自然采光和空间串联,增强酒店与商场、车辆段的联系。
4. 科技与自然融合
在整个项目中,无论是商业空间的LED屏幕视觉效果、数字水景,还是酒店的自然采光设计等,都体现了科技与自然的交融,打造出充满活力与现代感的都市绿洲,符合现代人们对高品质空间的需求。
不足
1. 大规模开发可能带来的问题:项目规模较大,在建设过程中可能对周边交通、环境等方面造成一定压力,且后期运营管理中,如何协调商业、酒店、车辆段等多业态之间的关系,确保各部分高效运行,可能面临较大挑战。
2. 设计复杂度与成本问题:独特的规划和丰富的设计元素使得项目在设计和施工过程中的复杂度增加,可能导致建设成本较高,如何在保证设计品质的同时控制成本,是项目需要面对的问题。

1条评分金币+6
xgch 金币 +6 回复认真,加分鼓励 昨天 21:56
如何不发帖就快速得到金币道行
 
在线姜谷粉丝

UID: 1569053

精华: 2
级别: 玉清道君

发帖
170589
金币
520934
道行
20030
原创
768
奖券
368
斑龄
0
道券
30
获奖
0
座驾
设备
摄影级
在线时间: 21127(小时)
注册时间: 2012-06-21
最后登录: 2026-02-04
只看该作者 板凳  发表于: 昨天 11:04
重庆麓悦江城咖啡厅
位于麓悦江城公园会客厅(售楼处),是悦来人文景观的品质组成部分,配套有咖啡厅、游泳池、健身房及各类艺术装置,环境融合松涛雅致与湖边景致,呈现历史与现代交融的“慢时光”氛围,招牌抹茶拿铁甄选铜仁梵净抹茶,辅以“若有心事,一杯美式”等趣味文案,成为市民游客放松身心的休闲场所。

直现建筑
指将设计效果图转化为现实场景的建筑项目,代表性案例包括:

深圳仁恒深之源:Aedas设计,已完成实景呈现,体现未来主义与自然美学的融合;
武汉国家网安基地核心区新地标:Aedas打造,构建高效集约的产业生态链;
香港富临阁:Aedas作品,强调与社区共生的设计理念;
西雅图儿童科学灵感实验室:Aedas设计,获2025年INawards大奖;
重庆新华书店集团公司解放碑时尚文化城:Aedas参与,已进入现场直击阶段。
北京湾里·王府井WellTown
是湾里项目北部的大型文商旅奥莱综合体,为华北地区最大奥莱,建筑面积约17万平方米,招商进度超90%,引入超500个国内外知名品牌(其中首次进入副中心的品牌占比超60%)。项目聚焦文化艺术、运动体验、环球美食、亲子娱乐四大板块,体验式业态占比达50%;内部设有30多米高的穹顶及水幕装置(瀑布从6层楼顶倾泻而下),配套湾里当代艺术中心,持续推出展览、音乐、戏剧等文化内容,打造“全时全域全龄”的消费新体验。

湾里·诺岚酒店
是首旅酒店旗下高端奢华新品牌“诺岚”全球首店,位于北京城市副中心文旅区,毗邻环球度假区(仅一街之隔),配套地铁多线交汇及专属巴士(6至8分钟直达乐园)。由Aedas设计、CCD操刀室内,以古巴比伦空中花园为灵感,打造垂直生态空间,拥有329间客房(均配法国高端洗护,含亲子主题房、宠物友好房及“好莱坞”客房——可俯瞰环球影城全貌);设1008平方米“艺术盒”(多功能公共空间,具备发布、宴会、艺术策展等功能)、310平方米屋顶花园、300平方米“诺岚花园”、200平方米星空泳池及十层无边泳池(可欣赏环球影城全景);引入6间主题餐厅,三层专属通道直连商业区,实现“住购玩”无缝衔接,以“先锋、灵感、互动”理念重新定义奢华度假体验。
1条评分金币+6
xgch 金币 +6 回复认真,加分鼓励 昨天 21:56
如何不发帖就快速得到金币道行
 
我有我可以
快速回复
限120 字节
认真回复加分,灌水扣分~
 
上一个 下一个