切换到宽版
  • 6阅读
  • 1回复

[奇观]长沙城建信息中心 / 中机国际罗劲工作室//深圳转转塔 / 大星吉子设计工作室[55P] [复制链接]

上一主题 下一主题
在线jjybzxw

UID: 551814

 

发帖
236334
金币
815150
道行
2006
原创
2459
奖券
3500
斑龄
44
道券
1548
获奖
0
座驾
设备
摄影级
在线时间: 50359(小时)
注册时间: 2008-10-01
最后登录: 2026-03-24
只看楼主 倒序阅读 楼主  发表于: 10小时前
— 本帖被 xgch 执行加亮操作(2026-03-24) —
长沙城建信息中心 / 中机国际罗劲工作室[42P]


01.
引言
城建档案是城市建设中形成的具有保存价值的文字、图表、影像等各种载体的技术资料,是历史的真实记录,是社会的宝贵财富,是人们研究历史、总结规律、规划未来的信息源泉。长沙城建信息中心其前身长沙市城建档案馆成立于1980年,为国家第一批城建信息中心,承载着长沙城建资料的收藏、整理与共享使命。馆藏的老地图其绘制技术及所示的位置与现代地图大体相近,这不仅是我国,也是世界上现存最早、科学水平相当高的实用性的彩色地图,它为我国地图史的研究提供了重要的资料,被世界誉为“惊人的发现”。更是城建信息中心最珍贵的资料之一。

▲长沙市城建档案馆及馆藏老地图 ©罗劲工作室
脚踏这片浸润着城市建设史的土地,马王堆汉墓帛画中“井”字街巷的规划智慧,从汉代夯土城墙到明清“九门九关”的城垣变迁,皆在脑海中浮现。这座建筑作为城市建设记忆的容器,理应成为长沙营城史的立体表达,让档案的静与城市的动相融,这一初衷成为设计创作的核心执念。
02.
基本情况
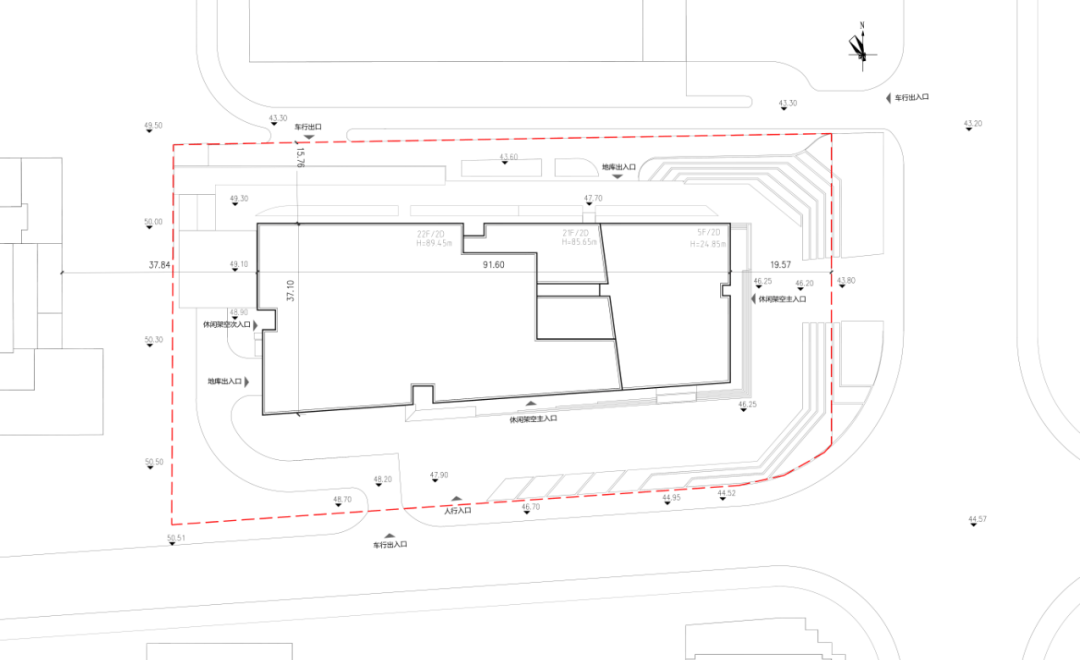
项目坐落于岳麓大道以北、岳华路以西,紧邻长沙市政府,是城市核心发展轴的关键节点。场地呈狭长形态,东西向存在5米自然高差,周边建筑平铺而密集,场地在80米高度可远眺湘江。
面对城市信息中心功能的大体量需求与狭长地块上建筑对城市的压迫感之间的矛盾,我们从场地东西向5米高差为设计切入点,通过"双首层"策略将地形劣势转化为立体公共空间,架空层与活动平台形成城市活力纽带。8925㎡的狭长用地上,51672㎡的建筑体量通过"峡谷式"多向架空、"像素化"切割等手法消解压迫感,与周边密集建筑形成和谐对话。

▲基地与周边环境 ©罗劲工作室

▲城市东北角鸟瞰视角 ©夏至
03.
设计表达
一、地图——延续城脉记忆
设计以“砌筑的城市”为灵感,将长沙城建史化作一部立体的“石头史书”。采用“迹忆”的设计语言,将城墙、街巷、桥梁、江水等城市记忆刻入建筑肌理,抽象的“井”字形布局在立面纵横切分出深浅不一的峡谷式内凹空间,如历史长河冲刷的印记,既将庞大体量化整为零,消解临街压迫感,又通过光影变化赋予建筑生命感知。深色陶板幕墙阴刻出老城肌理,冲刷出长沙城一直未曾改变的中心节点;塔楼库房在无采光要求的条件下,巧妙运用错位肌理的横向条窗暗喻刻入“史书”的文字,又仿佛遥远深邃的目光,注视着三千年的城市变迁。


▲方案草图 ©罗劲工作室

▲方案形体生成 ©罗劲工作室

▲城市东南角街景人视角 ©夏至


▲立面峡谷式内凹空间 ©夏至

▲幕墙上写意的地图拓印/错位肌理的横向条窗 ©罗劲工作室
建筑顶部退台形成的空中文化沙龙、瞭望平台形如天心阁的城墙洞口,可以远眺湘江。侧墙上利用锈蚀钢板刻印的古城邑图若隐若现,展示从古到今的城市发展的脉络。

▲屋顶空中瞭望平台 ©夏至
二、裂痕——城市有机织补
建筑为消解体量,形成东西南北四条凹槽,南部的主入口处上下贯通,斜切开洞,更是如历史长河般倾泻而下。中间结合二、三层展陈查阅空间的错落分布,形成多条错动的走廊,将东西两个建筑体块自然连接,满足市民查阅档案、参观展览、休闲交流等多元需求,也仿佛城市裂痕的有机织补,给人强烈的视觉冲击。

▲城建信息中心南侧主入口人视角 ©夏至


▲空间的错落分布 ©夏至


▲错动的走廊 ©夏至
这些特色节点的实现依托创新型钢混凝土组合结构体系。针对穿层柱、斜柱难点,梁柱内设置型钢以增强抗弯受拉性能;采用钢支模解决人工挖孔桩塌孔问题,保障单桩承载力达标。同时因存在扭转不规则、楼板不连续等不规则项,采用YJK与MIDAS双软件对比计算小震弹性响应;明确中震、大震各阶段性能水准;补充弹性时程及动力弹塑性分析,确保层间位移角合规;细化关键构件专项分析,优化设计保障受力安全。

▲现场结构施工实景 ©罗劲工作室

▲建筑结构复杂节点 ©罗劲工作室 / ©夏至
三、石书——悬浮空中库房
项目突破传统档案馆的封闭保管模式,向图书馆、博物馆功能延伸,实现公共资源集约化与开放式管理,推动档案资源从“封闭库房”向“公共共享空间”转型。针对长沙湿热气候及狭小地块的局限,项目将档案库房“悬浮”于塔楼部分,形成垂直上下分区,管理安全方便的同时留出下部开放空间,构建功能与技术深度融合的有机整体。


▲档案库房“悬浮”于塔楼部分 ©夏至

▲功能爆炸轴测图 ©罗劲工作室
裙房及首层对外开放;二层集中布置查询、阅览及陈列展示功能,大扶梯连通首层架空层,拓展公共流线;三至五层为内部办公与档案整理用房,与上部库房便捷联动且隔离外部干扰;六至二十二层为档案库房,以核心筒为中心划分为三个库区,最短走道连接,提升管理效率。

▲接待大厅/首层电梯厅 ©罗劲工作室

▲走廊/恒温恒湿库房 ©罗劲工作室
考虑档案安全至上,选用特殊玻璃有效吸收紫外线,设置双层墙体,空调采用恒温恒湿机组保持库房湿度稳定,采用高压细水雾消防系统保障档案安全。
四、长廊,城市多维体验
首层架空长廊多方位向城市开放,景观铺装抽象化长沙纵横交错的街道肌理,与建筑立面设计语言统一,从建筑延伸至场地的“街巷”,让市民穿行其间如穿梭在长沙三千年城建历史中;编年史地砖与景观铭牌散落其中,每一步皆是对城市记忆的触碰。三层台地巧妙化解5米地形高差,将场地与城市自然融合,东侧出入口结合台阶设置停留空间,为人行道留足缓冲,拾级而上与顶部空中观景平台遥相辉映,形成建筑 - 景观 - 室内三者融合的多维视角。



▲首层城建展陈开放空间 ©夏至

▲首层城建展陈开放空间 ©罗劲工作室


▲建筑东侧/西侧出入口 ©夏至
最终形成的是一部可阅读的城建史诗——当参观者穿越"时空隧道"长廊,汉代城邑图的夯土声与智能建造的嗡鸣在此共鸣,共同诠释"以水为脉,以城为书,以民为魂"的营城初心。打开给市民的城市空间,在次成为温暖的记忆的载体。

▲首层开放展廊编年史地砖景观铭牌位置及实景 ©罗劲工作室
五、智慧低碳,构筑绿色标杆
智慧层面,以IBMS+BIM高度集成化平台为核心,实现建筑实体与数字模型的动态交互,破解信息孤岛难题;BIM与物联网全域感知技术支撑精细化管控,管线综合与模块化机房提升工程品质,高精度环境传感、智能安防终端为档案安全筑牢防线,让沉睡的工程图纸在数字空间重生。同时系统性应用“四新技术”,BIM优化设计减少材料浪费,模块化产品降低施工损耗,能源管理、楼宇自控与智能照明联动,实现精细能源调控。

▲BIM相关专业模型 ©罗劲工作室
绿色层面,始终遵循因地制宜、被动优先、主动优化原则,让绿色融于设计细节。借势地形打造台地与架空层,南侧内凹主入口通高灰空间与空中花园形成立体“风道”,最大化实现自然通风与采光;屋顶铺设光伏板进行绿色发电;干挂陶板与水平内收的“檐下空间”打造高效水平遮阳,种植屋面、通风架空屋面与档案库区双层外墙,大幅提升建筑保温隔热性能。外立面陶板以天然陶土为原料,环保可回收且兼具保温、降噪、耐久性能。

▲外立面细部 ©罗劲工作室
05.
结语
从场地踏勘到方案落地,从图纸绘制到建筑落成,建筑从狭长地块中生长,从钢筋水泥化作融于城市、充满温度的公共空间,恰如长沙这座城市,在三千年营城岁月中不断生长、蜕变。
在这座“会呼吸的档案库”里,BIM技术让沉睡的工程图纸在数字空间重生。穿过“长沙三千年”的架空展廊,西汉的城邑图与今日的智慧城市模型在虚拟空间中对话——原来三千年来,长沙人营城的智慧始终未变:以水为脉,以城为书,以民为魂。


▲充满温度的公共空间 ©夏至

▲城市西南角鸟瞰视角 ©夏至
06.
技术图纸

▲总平面图 ©罗劲工作室

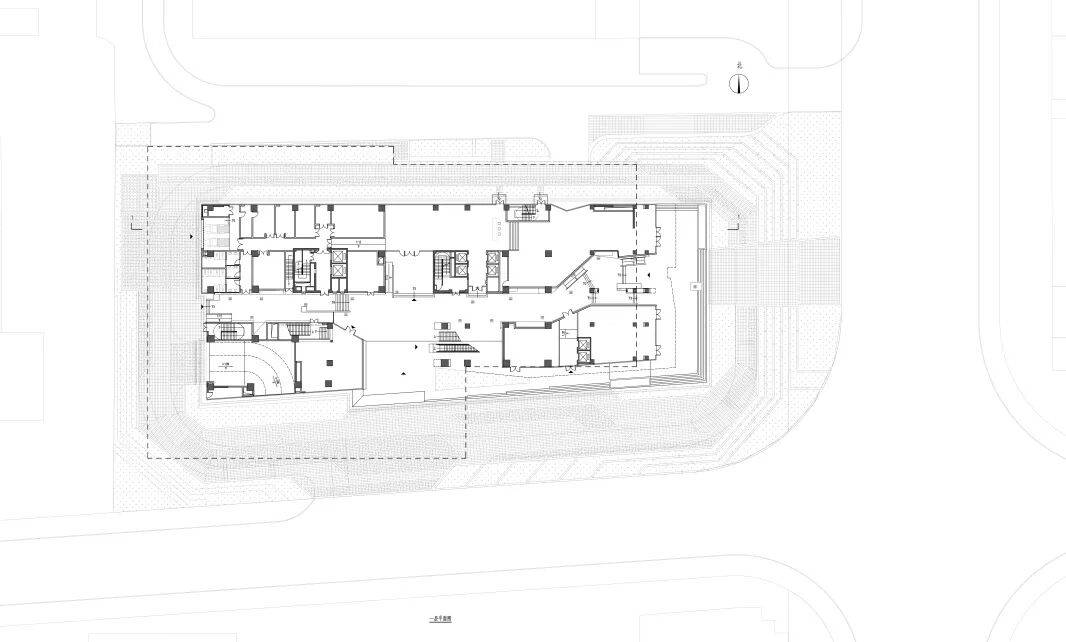
▲一层平面图 ©罗劲工作室

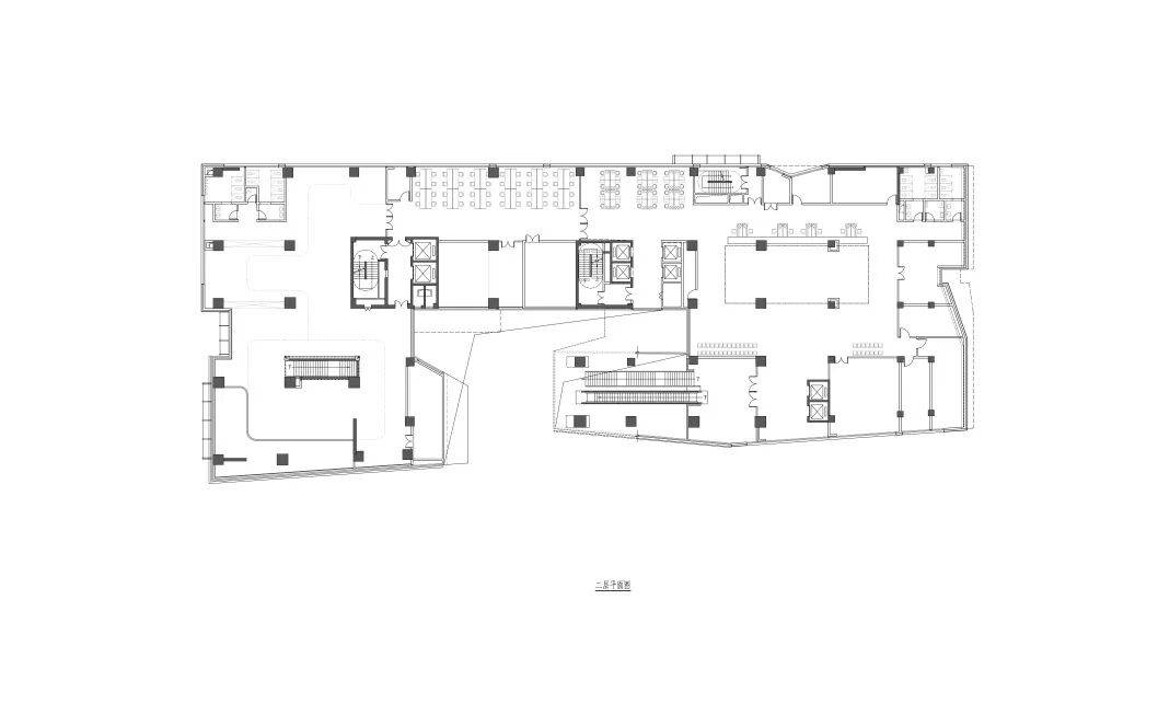
▲二层平面图 ©罗劲工作室

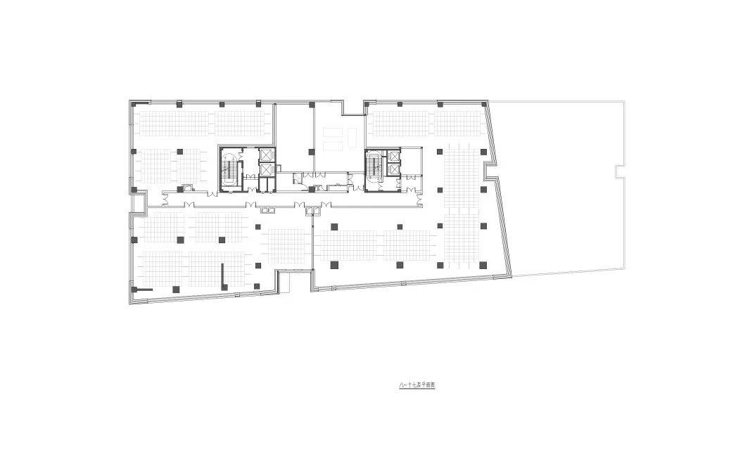
▲八至十七层平面图 ©罗劲工作室
▲二十层平面图 ©罗劲工作室

▲立面图 ©罗劲工作室

▲剖面图 ©罗劲工作室
项目信息
项目名称:长沙城建信息中心
项目类型:文化建筑
设计方:中机国际工程设计研究院有限责任公司,罗劲工作室
项目设计:2020
完成年份:2024
设计团队:
项目总设计师:罗劲
项目负责人:李克
建筑设计:罗劲、李克、张程、李蕾、陈小明、刘佳、郭坤、杨丹
结构设计:江昊、朱江、易永锋、李小川、樊鑫淼、米晓玲
电气设计:陈展翔、赵津津、程卫权
给排水设计:卓运红、李剑、杨思琴
暖通设计:陈迪、陆凌
景观设计:程启
室内设计:沈清君、周孛蓓、王志、彭韵
幕墙亮化设计:张红良、徐铮、何赛男、曾旭
基坑支护:魏涛、刘利松、李亮、王露
项目地址:湖南省长沙市
建筑面积:67161.59㎡
摄影版权:夏至、罗劲工作室
客户:长沙市铁路建设投资开发有限公司
合作单位:悉地国际设计顾问(深圳)有限公司
========================================================================================================================================

深圳转转塔 / 大星吉子设计工作室[13P]

大星吉子最新公共艺术装置《转转塔》亮相华侨城创意园OCT-LOFT 2026“超级新年”。作品是一个需要观众驱动的互动装置,当人们转动底盘时,齿轮传动将使整个结构旋转起来。这延续了设计师以“游戏精神”激活城市景观的理念,通过精心设计的互动,调动公众的身体感知。

©️大星吉子 摄影:张超


©️大星吉子 摄影:朱惠妍
旋转的游戏
装置灵感来源于庆典蛋糕,试图以动态旋转为场域注入欢快气息。造型融合了蛋糕的层叠感与塔的架构,塔身由多个环形层级堆叠。


©️大星吉子 摄影:朱惠妍
旋转的奥秘在于层间相互咬合的齿轮:上半部分推上层向前,下半部分推下层向后,从而实现上下层之间的反转。运动由底层向上传递——人推动底层,塔身各层便在这传动中逐级转动。

©️大星吉子 摄影:张超
“合力”的公共时刻
《转转塔》的核心体验不止于观看,更在于多人协作的参与。单人的力量仅能引发有限转动,只有当众人同时介入,旋转才被真正激活。


©️大星吉子 摄影:张超
旋转动作本身简单直接,消解了年龄、身份与背景的差异,使参与成为一种近乎本能的反应。此刻,欢庆不再依赖特定节日,而在日常互动中被重新创造。

©️大星吉子 摄影:张超
随着塔身持续旋转,色彩与光影不断变幻,时间仿佛被拉长,成为一种可被身体感知的节奏。当旋转停止,装置重归静止,但互动已化为身体的记忆、一次短暂的相遇,或被分享的欢乐瞬间——《转转塔》为这一切提供了发生的场景。

©️大星吉子 摄影:张超

图片来自OCT- LOFT
《转转椅》:嵌入日常
作为《转转塔》的延伸,《转转椅》将主装置的欢庆与互动基因,注入更贴近日常的公共家具。这套座椅由圆椅与半弧椅组成,分散布置于园区。半弧形态轻柔环抱树木,与环境共生,既可独坐,也可围合出交流场域。

©️大星吉子 摄影:张超
椅面上叠置的彩色金属圈,延续了塔身旋转切片的视觉语言,人们在此停留、交谈、相遇,让“转转”所承载的相遇与祝福,从庆典中心,缓慢扩散至日常生活的边缘。

摄影:驴哥
结语
《转转塔》希望通过“旋转”这一简单的身体动作,让公共空间重新变得亲切、可参与。在一次次转动中,游览、互动与庆典自然交织,成为城市中一种具体的快乐。
项目信息
项目名称:转转塔
设计单位:大星吉子设计工作室
项目总监:谢琼枝
主创设计师:曾镇威
机械设计:罗悦慈
摄影:张超、朱惠妍、OCT-LOFT
视频制作:叶翔雨
宣传支持:徐靖宛
项目委托方:华侨城创意园OCT-LOFT
面积:30平方
项目地点:深圳市南山区华侨城创意园OCT-LOFT南区入口
1条评分金币+32
xgch 金币 +32 辛苦了,感谢您无私奉献的精神! 38分钟前
山庄提示: 道行不够,道券不够?---☆点此充值☆
 
在线jjybzxw

UID: 551814


发帖
236334
金币
815150
道行
2006
原创
2459
奖券
3500
斑龄
44
道券
1548
获奖
0
座驾
设备
摄影级
在线时间: 50359(小时)
注册时间: 2008-10-01
最后登录: 2026-03-24
只看该作者 沙发  发表于: 10小时前
长沙城建信息中心 / 中机国际罗劲工作室
1. 项目背景与意义
城建档案的重要性:长沙市城建档案馆成立于1980年,是国家第一批城建信息中心,承载着长沙城建资料的收藏、整理与共享使命。馆藏的老地图是我国乃至世界上现存最早、科学水平相当高的实用性的彩色地图,为地图史研究提供了重要资料。
设计初衷:项目旨在成为长沙营城史的立体表达,让档案的静与城市的动相融,展示城市建设记忆。
2. 项目基本情况
位置与场地:项目坐落于岳麓大道以北、岳华路以西,紧邻长沙市政府,场地呈狭长形态,东西向存在5米自然高差。
设计策略:通过“双首层”策略将地形劣势转化为立体公共空间,采用“峡谷式”多向架空、“像素化”切割等手法消解建筑压迫感。
3. 设计表达
地图——延续城脉记忆:
设计灵感来源于“砌筑的城市”,将长沙城建史化作立体的“石头史书”。
采用“迹忆”设计语言,将城墙、街巷、桥梁、江水等城市记忆刻入建筑肌理。
深色陶板幕墙阴刻出老城肌理,塔楼库房运用错位肌理的横向条窗暗喻刻入“史书”的文字。
裂痕——城市有机织补:
建筑形成东西南北四条凹槽,南部主入口处上下贯通,形成多条错动的走廊,连接东西两个建筑体块。
创新型钢混凝土组合结构体系确保结构安全。
石书——悬浮空中库房:
档案库房“悬浮”于塔楼部分,形成垂直上下分区,留出下部开放空间。
裙房及首层对外开放,二层集中布置查询、阅览及陈列展示功能,三至五层为内部办公与档案整理用房,六至二十二层为档案库房。
长廊——城市多维体验:
首层架空长廊多方位向城市开放,景观铺装抽象化长沙街道肌理。
三层台地化解地形高差,将场地与城市自然融合。
智慧低碳——构筑绿色标杆:
智慧层面:以IBMS+BIM高度集成化平台为核心,实现建筑实体与数字模型的动态交互。
绿色层面:遵循因地制宜、被动优先、主动优化原则,打造立体“风道”,最大化实现自然通风与采光。
4. 结语
项目从场地踏勘到方案落地,化作融于城市、充满温度的公共空间,诠释了长沙人营城的智慧:以水为脉,以城为书,以民为魂。
5. 技术图纸与项目信息
技术图纸:包括总平面图、一层平面图、二层平面图、八至十七层平面图、二十层平面图、立面图、剖面图等。
项目信息:
项目名称:长沙城建信息中心
项目类型:文化建筑
设计方:中机国际工程设计研究院有限责任公司,罗劲工作室
项目设计:2020年
完成年份:2024年
项目地址:湖南省长沙市
建筑面积:67161.59㎡
深圳转转塔 / 大星吉子设计工作室
1. 项目背景与理念
项目背景:《转转塔》是大星吉子最新公共艺术装置,亮相华侨城创意园OCT-LOFT 2026“超级新年”。
设计理念:以“游戏精神”激活城市景观,通过精心设计的互动,调动公众的身体感知。
2. 设计与互动体验
设计灵感:来源于庆典蛋糕,造型融合了蛋糕的层叠感与塔的架构,塔身由多个环形层级堆叠。
旋转机制:层间相互咬合的齿轮实现上下层之间的反转,运动由底层向上传递,人推动底层,塔身各层逐级转动。
多人协作:核心体验在于多人协作的参与,单人的力量有限,众人同时介入才能激活旋转。
3. 色彩与光影变幻
视觉体验:随着塔身持续旋转,色彩与光影不断变幻,时间仿佛被拉长,成为一种可被身体感知的节奏。
互动记忆:互动化为身体的记忆、一次短暂的相遇或被分享的欢乐瞬间,《转转塔》为这一切提供了发生的场景。
4. 《转转椅》:日常互动延伸
设计延伸:《转转椅》将主装置的欢庆与互动基因注入更贴近日常的公共家具。
座椅组成:由圆椅与半弧椅组成,分散布置于园区,半弧形态轻柔环抱树木,与环境共生。
视觉语言:椅面上叠置的彩色金属圈延续了塔身旋转切片的视觉语言。
5. 结语
项目意义:《转转塔》希望通过“旋转”这一简单的身体动作,让公共空间重新变得亲切、可参与,成为城市中一种具体的快乐。
6. 项目信息
项目名称:转转塔
设计单位:大星吉子设计工作室
项目总监:谢琼枝
主创设计师:曾镇威
机械设计:罗悦慈
项目委托方:华侨城创意园OCT-LOFT
项目地点:深圳市南山区华侨城创意园OCT-LOFT南区入口
面积:30平方米

1条评分金币+6
xgch 金币 +6 回复认真,加分鼓励 38分钟前
如何不发帖就快速得到金币道行
 
快速回复
限120 字节
认真回复加分,灌水扣分~
 
上一个 下一个